

一、FD型微振屏閉式機械回轉扁布袋除塵器概述:
FD型微振屏閉式機械回轉扁布袋除塵器具有結構簡單,換袋及維修方便的 點,該FD系列扁袋機械回轉布袋除塵器是由一個低效率的旋風筒(殼體)和 率的袋除塵器濾袋組合而成的復式除塵器,并采用氣振閥屏閉反吹清灰, 使該型式與其它機械回轉除塵器比較別具一格,加上嚴密的密封,故其收塵效率很高。
該FD系列扁袋機械回轉除塵器適用于建材工業中物料破碎,粉磨、包裝篩分,儲庫及其它設備的抽風收塵。
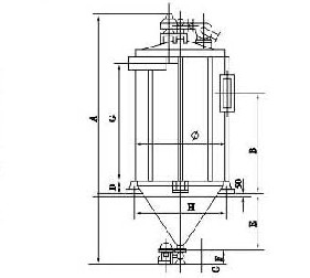
二、 FD型微振屏閉式機械回轉扁布袋除塵器簡要圖:

三、 FD型微振屏閉式機械回轉扁布袋除塵器外形尺寸:
|
尺寸/型號
|
FD30-27
|
FD41-27
|
FD60-27
|
FD90-78
|
FD180-78
|
FD340-148
|
FD510-148
|
|
|
A
|
4476
|
4796
|
6082
|
5224
|
6722
|
8091.5
|
9591.5
|
|
|
B
|
1450
|
1900
|
2950
|
1295
|
2700
|
2600
|
4000
|
|
|
C
|
1670.5
|
2170.5
|
3213
|
1660
|
3215
|
3205
|
4620
|
|
|
D
|
300
|
300
|
300
|
300
|
300
|
400
|
400
|
|
|
E
|
970
|
970
|
970
|
1600
|
1600
|
2455
|
2455
|
|
|
F
|
300
|
300
|
300
|
300
|
305
|
450
|
450
|
|
|
G
|
|
|
|
150
|
150
|
225
|
225
|
|
|
H
|
1800
|
1800
|
1800
|
2620
|
2620
|
3600
|
3600
|
|
|
I
|
1090
|
1090
|
1090
|
1500
|
1500
|
2550
|
2550
|
|
|
J
|
925
|
925
|
925
|
1355
|
1355
|
1850
|
1850
|
|
|
K
|
800
|
800
|
800
|
1000
|
1000
|
1300
|
1300
|
|
|
M
|
100
|
100
|
100
|
160
|
160
|
200
|
200
|
|
|
ф筒內徑
|
1730
|
1730
|
1730
|
2550
|
2550
|
3500
|
3500
|
|
|
a
|
308
|
408
|
308
|
508
|
808 1008(出風)
|
1008 1208
|
1208
|
|
|
b
|
115
|
115
|
200
|
200
|
250 200(出風)
|
408 338
|
508
|
|
|
進出口風法蘭
|
c×d
|
122×3
|
113×4
|
122×3
|
142×4
|
124×7
144+6×130+144(出風)
|
119×9=1071
106×12=1272出
|
115.27×11
|
|
e×f
|
91.5×2
|
83.5×2
|
134×2
|
134×2
|
106×3
134×2(出風)
|
4×117=468
100×4=400出
|
113.6×5
|
|
|
g
|
200
|
200
|
200
|
200
|
200
|
300
|
300
|
|
|
排灰閥
|
h
|
140
|
140
|
140
|
140
|
140
|
200
|
200
|
|
i
|
260
|
260
|
260
|
260
|
260
|
360
|
360
|
|
|
ф1
|
20
|
24
|
24
|
24
|
24
|
28
|
28
|
|